appartement - 2 pièces - 27,12 m² Marseille 6e - Notre-Dame-du-Mont

#vente

133 000 €
4 904 € / m²
ref : 121814

Descriptif général

  • Copropriété : Oui (6 lots)
  • Type de bien : T2
  • Les plus du bien : Traversant
  • Surface habitable : 27,12 m²
  • Surface Carrez : 27.12 m²
  • Étage : 3 / 4
  • Chambres : 1
  • Salles d'eau : 1
  • État du bien : Bon
  • Parking privatif : Non
  • Locataire en place : Non

à propos

**** Notre Dame du Mont *** TRAVERSANT *** Type 2****

My Marseille a le plaisir de vous présenter cet appartement de type 2, à proximité immédiate de Notre Dame du Mont et du Camas. Idéal pour un premier achat ou investissement.

Cet appartement TRAVERSANT et LUMINEUX, saura vous séduire par ses espaces.

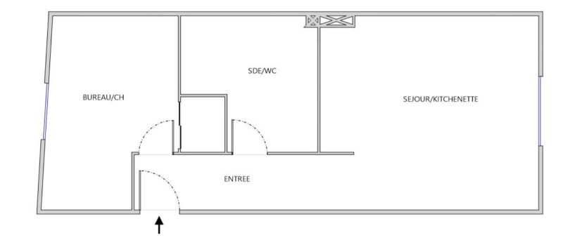
Il est situé au 3ᵉ étage et est agencé comme suit :

- Une pièce à vivre avec coin cuisine lumineuse donnant sur rue
- Une chambre avec placard au calme sur cour
- Pour votre confort, une salle d’eau avec WC

Proche de tous commerces et transport en commun, vous résidez dans un environnement privilégié, au cœur des cafés et restaurants et adresses tendances qui animent et font le charme du quartier.

Travaux récents :
Double vitrage, peintures, compteur électrique, salle de bain.
Peinture parties communes printemps 2025.

Bon à savoir : pas de DPE car pas de système de chauffage fixe, il sera facile d'installer des radiateurs à inertie.

À découvrir très vite.

Les informations sur les risques auxquels ce bien est exposé sont disponibles sur le site Géorisques
Les honoraires d'agence sont à la charge exclusive du vendeur.
Pour consulter nos tarifs cliquez ici.

Descriptif détaillé

Le détail pièce par pièce
Niveau Surface * Sol Exposition Vue
Salon 0 12,12 m² Lino Sud-ouest Rue
Cuisine 0 - - - -
Chambre 0 7,81 m² Lino Nord-est Cour
Salle d'eau 0 4,04 m² Carrelage - -
Hall 0 3,15 m² - - -

* Ces valeurs sont données à titre indicatif

Renseignements complémentaires
Période de construction : De 1949 à 1997
Fenêtres : Double vitrage, En PVC
État de la construction :
  • Façade : Bon
  • Parties communes : Rénové
Situation :
  • Commerces à moins de 200m
  • Transports à moins de 200m
Sécurité copropriété : Interphone
Charges / Taxes / Dépenses
Charges & taxes * Mensuelles Annuelles
Assurances NC NC
Charges de copropriété 80 € 960 €
Dépenses d'énergie NC NC
Taxe foncière 54 € 650 €
Taxe d'habitation NC NC
Total des dépenses connues 134 € 1610 €

* Ces valeurs sont données à titre indicatif

Diagnostics
  • Électricité : Présence d'anomalies
  • Gaz : Non requis
  • Termites : Pas d'anomalies
  • Amiante : Présence d'anomalies
  • Plomb : Pas d'anomalies

Diagnostic de performance énergétique

logement très performant
a
b
c
d
e
f
g

consommation
(énergie primaire)

451 kWh/m2.an

émissions

81* kg CO₂/m².an

logement extrêmement consommateur d’énergie
Logement à consommation énergétique excessive
Diagnostic réalisé après le 1er Juillet 2021
  • Estimation coût annuel minimum 900 €
  • Estimation coût annuel maximum 1000 €

*Dont émissions de gaz à effet de serre

peu d'émissions de CO₂
a
b
c
d
e
f
g

81 kg CO₂/m².an

émissions de CO₂ très importantes

Localisation du bien

Chargement de la carte en cours ...
Le bien se situe dans un rayon de 100m autour du point.

Enregistrez votre alerte

Ne passez pas à côté de la perle rare !

Recevez gratuitement vos nouvelles annonces