maison - 4 pièces - 107 m² Marseille 12e - Saint-Julien

#vente

559 000 €
5 224 € / m²
ref : 122390

Annonce premium

Descriptif général

  • Copropriété : Non
  • Type de bien : 4 pièces
  • Les plus du bien : Piscine privative (4 x 2,5 m), Climatisation
  • Surface habitable : 107 m²
  • Surface Carrez : Non renseignée
  • Niveaux : 2
  • Chambres : 3
  • Salles de bain : 1
  • Salles d'eau : 1
  • État du bien : Bon
  • Parking privatif : Oui
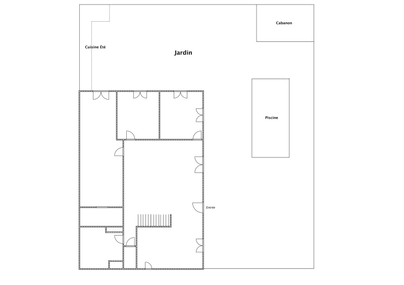
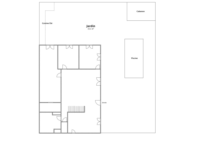
  • Extérieur : Jardin de 311 m², Cuisine d'ete, Cabanon /pool house de 11.2 m²
  • Locataire en place : Non

à propos

Exclusivité — Maison de charme T4/5 dans le très recherché 12ᵉ arrondissement

Dans l’un des quartiers les plus prisés du 12ᵉ arrondissement, découvrez une maison singulière, pleine de charme, où chaque espace semble raconter une histoire. Un lieu qui mêle douceur de vivre, élégance et ce petit air de vacances qui ne quitte jamais les lieux.

Dès que le portail automatique s’ouvre, le ton est donné : deux places de stationnement accueillent aisément vos véhicules, offrant un confort rare en zone résidentielle.
Le jardin, dessiné en L, dévoile une piscine baignée de lumière et de jolies terrasses invitant à profiter des beaux jours. Une première terrasse borde l’entrée principale, puis la terrasse en teck, prolongée par sa cuisine d’été, devient le théâtre naturel de repas partagés et de soirées douces.

À l’intérieur, la maison révèle un salon cathédrale à l’atmosphère immédiatement enveloppante. Poutres apparentes, volumes généreux, insert bois et climatisation composent une pièce de vie à la fois raffinée et chaleureuse.
La cuisine ouverte, spacieuse et entièrement équipée, accompagne parfaitement ce lieu de convivialité.

Surplombant le séjour, une mezzanine d’environ 13 m² ajoute une dimension supplémentaire : bureau inspirant, coin lecture suspendu, salle de jeux ou couchage d’appoint — un espace modulable selon les envies et les saisons.

Le rez-de-chaussée propose :

Deux chambres agréables, tournées vers le jardin ;

Une suite parentale avec salle d’eau, WC et une penderie ouvrant directement sur la terrasse, comme une respiration matinale ;

Une salle de bains indépendante ;

Un WC séparé.

Cette maison possède une âme : chaleureuse l’hiver grâce à son esprit cocon, ouverte et joyeuse l’été avec ses extérieurs pensés pour partager.
Un lieu rare, où l’on se sent bien dès les premiers instants, dans un cadre résidentiel d’exception.

Les informations sur les risques auxquels ce bien est exposé sont disponibles sur le site Géorisques
Les honoraires d'agence sont à la charge exclusive du vendeur.
Pour consulter nos tarifs cliquez ici.

Descriptif détaillé

Le détail pièce par pièce
Niveau Surface * Sol Exposition Vue
Salon 0 27,60 m² Carrelage Sud Jardin
Cuisine 0 12,50 m² Carrelage Sud Terrasse
Mezzanine 1 13,30 m² Parquet - -
Chambre 1 18,00 m² Parquet Sud-est Terrasse
Chambre n°2 0 8,70 m² Parquet Sud-est Jardin
Chambre n°3 0 87,00 m² Parquet Sud-est Terrasse
Salle de bain 0 6,90 m² Carrelage - -
Salle d'eau 0 3,15 m² Carrelage - -
Wc 0 - Carrelage - -
Dégagement 0 1,06 m² Carrelage - -
Jardin - 311,00 m² - Sud -
Cuisine d'ete - - - - -
Cabanon /pool house - 11,20 m² - - -

* Ces valeurs sont données à titre indicatif

Informations complémentaires : L’extérieur de 311 m² offre plusieurs espaces très pratiques : une terrasse avec cuisine d’été, un jardin avec piscine, une seconde terrasse à l’entrée principale, ainsi qu’un cabanon pool house pour le rangement. La parcelle dispose également d’un emplacement permettant de garer facilement deux voitures, d’un portail automatique et d’un éclairage extérieur qui valorise l’ensemble. Un extérieur complet, idéal pour profiter pleinement des beaux jours en famille ou entre amis.

Renseignements complémentaires
Période de construction : De 1900 à 1948
Fenêtres : Double vitrage,
Chauffage : insert au bois / radiateurs inertie / climatisatio
État de la construction :
  • Façade : Bon
  • Toiture : Bon
Annexes & rangements : CABANON / POOL HOUSE
Situation :
  • Commerces à moins de 200m
  • Transports à moins de 200m
Sécurité : alarme
Charges / Taxes / Dépenses
Charges & taxes * Mensuelles Annuelles
Assurances NC NC
Charges de copropriété NC NC
Dépenses d'énergie NC NC
Taxe foncière 35 € 420 €
Taxe d'habitation NC NC
Total des dépenses connues 35 € 420 €

* Ces valeurs sont données à titre indicatif

Diagnostics
  • Électricité : Non requis
  • Gaz : Non requis
  • Termites : Non requis
  • Amiante : Non requis
  • Plomb : Non requis

Diagnostic de performance énergétique

logement très performant
a
b
c
d
e
f
g

consommation
(énergie primaire)

223 kWh/m2.an

émissions

7* kg CO₂/m².an

logement extrêmement consommateur d’énergie
Diagnostic réalisé après le 1er Juillet 2021
  • Estimation coût annuel minimum 1430 €
  • Estimation coût annuel maximum 2000 €

*Dont émissions de gaz à effet de serre

peu d'émissions de CO₂
a
b
c
d
e
f
g

7 kg CO₂/m².an

émissions de CO₂ très importantes

Localisation du bien

Chargement de la carte en cours ...
Le bien se situe dans un rayon de 100m autour du point.

Enregistrez votre alerte

Ne passez pas à côté de la perle rare !

Recevez gratuitement vos nouvelles annonces