appartement - 6 pièces - 171,69 m² Marseille 4e - Cinq-Avenues

#vente

488 000 €
2 842 € / m²
ref : 75951

Annonce premium

Descriptif général

  • Copropriété : Oui (6 lots)
  • Type de bien : T6
  • Les plus du bien : Duplex, Traversant, Cave
  • Surface habitable : 171 m²
  • Surface Carrez : 171,69 m²
  • Étage : Rdc / 4
  • Chambres : 4
  • Salles de bain : 1
  • Salles d'eau : 1
  • État du bien : À rafraîchir
  • Parking privatif : Non
  • Extérieur : Terrasse de 34 m², Jardin de 130 m², Terrasse n°2
  • Locataire en place : Oui
  • Date de fin de bail : 15/12/2025

à propos

Comme une maison – Magnifique duplex avec jardin et terrasses

Rare à la vente ! Ce bel appartement en duplex offre le charme d’une maison, avec ses deux terrasses et son jardin au calme.

Il se compose comme suit :

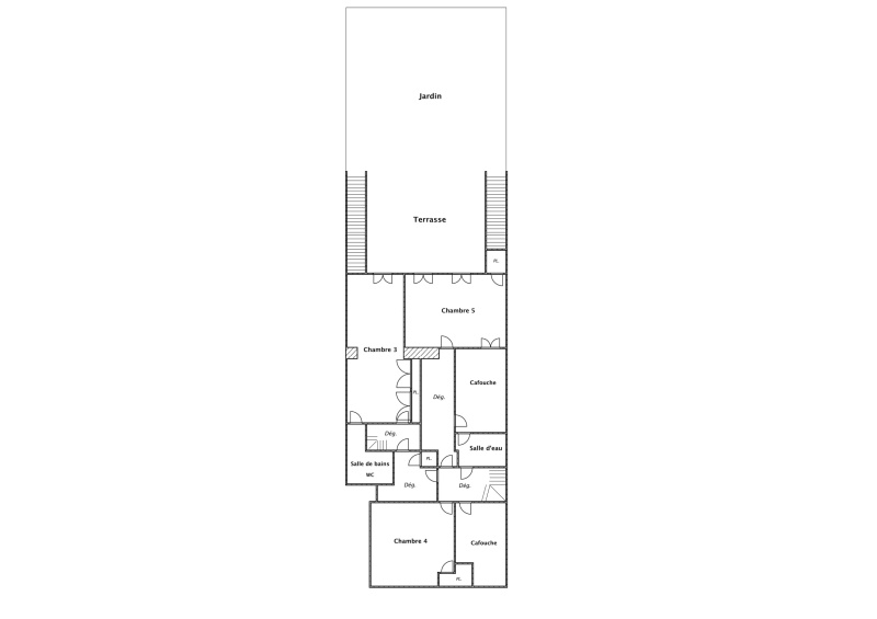
Au rez-de-chaussée, vous trouverez une cuisine ancienne pleine de charme, un grand séjour lumineux ouvrant sur une belle terrasse avec vue sur le jardin, ainsi que deux chambres côté rue.

Au rez-de-jardin, deux chambres donnant sur le jardin, une pièce sans fenêtre pouvant servir de bureau, deux dressings, une buanderie, et deux salles d’eau, dont une avec baignoire.

Des travaux de rafraîchissement sont à prévoir, mais le potentiel est là : volumes, extérieur et tranquillité.

Proches metro, écoles, commerces, parc longchamp

Un bien rare, comme une maison, idéal pour une famille ou pour ceux qui recherchent le charme de l’ancien avec des espaces extérieurs privatifs.

Contactez-nous rapidement pour plus d’informations ou pour organiser une visite. Ce genre de bien ne reste pas longtemps disponible !

Les informations sur les risques auxquels ce bien est exposé sont disponibles sur le site Géorisques
Les honoraires d'agence sont à la charge exclusive du vendeur.
Pour consulter nos tarifs cliquez ici.

Descriptif détaillé

Le détail pièce par pièce
Niveau Surface * Sol Exposition Vue
Hall 1 6,89 m² Carrelage - -
Dégagement 1 5,52 m² Carrelage - -
Dressing 1 1,75 m² Carrelage - -
Salon 1 20,61 m² Carrelage Sud-est Terrasse
Chambre 1 11,60 m² Carrelage Nord-ouest Rue
Cuisine 1 18,21 m² Carrelage Sud-est Terrasse
Wc 1 - - - -
Dégagement n°2 0 4,23 m² Carrelage - -
Cave 0 7,58 m² Carrelage - -
Bureau 0 10,05 m² Carrelage - -
Dressing n°2 0 1,41 m² Carrelage - -
Dégagement n°3 0 7,56 m² Carrelage - -
Local chaufferie, buanderie 0 - Carrelage - -
Dégagement n°4 0 2,99 m² Carrelage - -
Chambre n°2 0 21,32 m² Carrelage Sud-est Jardin
Salle de bain 0 5,28 m² Carrelage - -
Dégagement n°5 0 8,47 m² Carrelage - -
Chambre n°3 0 23,23 m² Carrelage Sud-est Jardin
Dressing n°3 0 9,49 m² Carrelage - -
Salle d'eau 0 3,39 m² Carrelage - -
Terrasse - 34,00 m² Carrelage Sud-est -
Jardin - 130,00 m² - - -
Terrasse n°2 - - - - -

* Ces valeurs sont données à titre indicatif

Renseignements complémentaires
Période de construction : Avant 1900
Fenêtres : Double vitrage,
État de la construction :
  • Façade : Bon
  • Parties communes : Moyen
Situation :
  • Commerces à moins de 200m
  • Transports à moins de 200m
Charges / Taxes / Dépenses
Charges & taxes * Mensuelles Annuelles
Assurances NC NC
Charges de copropriété 147 € 1764 €
Dépenses d'énergie NC NC
Taxe foncière 192 € 2304 €
Taxe d'habitation NC NC
Total des dépenses connues 339 € 4068 €

* Ces valeurs sont données à titre indicatif

Informations complémentaires : Syndic bénévol

Diagnostics
  • Électricité : Non requis
  • Gaz : Non requis
  • Termites : Non requis
  • Amiante : Non requis
  • Plomb : Présence d'anomalies

Diagnostic de performance énergétique

logement très performant
a
b
c
d
e
f
g

consommation
(énergie primaire)

249 kWh/m2.an

émissions

68* kg CO₂/m².an

logement extrêmement consommateur d’énergie
Diagnostic réalisé après le 1er Juillet 2021
  • Estimation coût annuel minimum 5100 €
  • Estimation coût annuel maximum 6950 €
  • Date de référence 29/08/2025

*Dont émissions de gaz à effet de serre

peu d'émissions de CO₂
a
b
c
d
e
f
g

68 kg CO₂/m².an

émissions de CO₂ très importantes

Localisation du bien

Chargement de la carte en cours ...
Le bien se situe dans un rayon de 100m autour du point.

Enregistrez votre alerte

Ne passez pas à côté de la perle rare !

Recevez gratuitement vos nouvelles annonces