appartement - 3 pièces - 102,65 m² Marseille 6e - Vauban

#vente #exclusivité

550 000 €
5 358 € / m²
ref : 122694

Annonce premium Sous-compromis

Descriptif général

  • Copropriété : Oui (5 lots)
  • Type de bien : T3
  • Les plus du bien : Traversant, Climatisation, Cave
  • Surface habitable : 60,19 m²
  • Surface Carrez : 102,65 m²
  • Étage : Rdc / 4
  • Chambres : 1
  • Salles d'eau : 1
  • État du bien : À rénover
  • Parking privatif : Oui
  • Extérieur : Jardin de 60 m²
  • Locataire en place : Non

à propos

VAUBAN – REZ-DE-JARDIN – JARDIN 60 m² – GARAGE – DÉPENDANCES

Au cœur du très recherché quartier de Vauban, découvrez ce rez-de-jardin rare à la vente, offrant un véritable esprit maison en pleine ville.

Développant 80 m² avec sa véranda, cet appartement s’ouvre sur un superbe jardin d’environ 60 m², au calme, idéal pour profiter de l’extérieur en toute intimité.

Cet appartement dispose également de deux dépendances aux nombreuses possibilités (atelier, bureau, rangement…) ainsi que d’un garage avec accès direct, un atout particulièrement précieux dans ce secteur très urbain.

Autre bonus : 2 grandes caves, dont une accessible directement depuis le salon via un monte charge.

Des travaux permettront de révéler tout le potentiel de cet appartement et de créer un lieu de vie unique ; le votre.

Un bien rare, au charme indéniable, à découvrir sans tarder.

Contactez-nous pour plus d'informations.

Les informations sur les risques auxquels ce bien est exposé sont disponibles sur le site Géorisques
Les honoraires d'agence sont à la charge exclusive du vendeur.
Pour consulter nos tarifs cliquez ici.

Descriptif détaillé

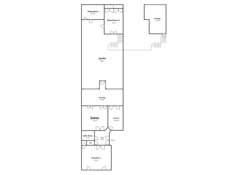
Le détail pièce par pièce
Niveau Surface * Sol Exposition Vue
Hall 0 6,55 m² Parquet - -
Chambre 0 22,92 m² Parquet Nord-est Rue
Wc 0 - Carrelage - -
Salle d'eau 0 3,27 m² Carrelage - -
Salon 0 16,00 m² Parquet Sud-ouest Véranda
Dressing sous salon 0 14,00 m² - - -
Cuisine 0 10,52 m² Carrelage Sud-ouest Véranda
Véranda 0 20,15 m² Carrelage Sud-ouest Jardin
Dépendance #1 0 8,70 m² Tomettes Nord-est Jardin
Dépendance #2 0 13,61 m² Carrelage Nord-est Jardin
Jardin - 60,00 m² - Sud-ouest -

* Ces valeurs sont données à titre indicatif

Renseignements complémentaires
Période de construction : De 1900 à 1948
Matériaux de construction : Pierre
Fenêtres : Double vitrage,
Chauffage : Pompe à châleur
État de la construction :
  • Façade : Bon
  • Parties communes : Bon
Annexes & rangements : Cave, 2 Dépendances 22,31m2
Situation :
  • Commerces à moins de 200m
  • Transports à moins de 200m
Sécurité copropriété : Interphone

Informations complémentaires : Deux caves dont une pour laquelle l'accès se fait directement par le salon via un monte charge.

Charges / Taxes / Dépenses
Charges & taxes * Mensuelles Annuelles
Assurances NC NC
Charges de copropriété 65 € 782 €
Dépenses d'énergie NC NC
Taxe foncière 125 € 1500 €
Taxe d'habitation NC NC
Total des dépenses connues 190 € 2282 €

* Ces valeurs sont données à titre indicatif

Diagnostics
  • Électricité : Présence d'anomalies
  • Gaz : Pas d'anomalies
  • Termites : Pas d'anomalies
  • Amiante : Présence d'anomalies
  • Plomb : Présence d'anomalies

Diagnostic de performance énergétique

logement très performant
a
b
c
d
e
f
g

consommation
(énergie primaire)

205 kWh/m2.an

émissions

34 kg CO₂/m².an

logement extrêmement consommateur d’énergie
Diagnostic réalisé après le 1er Juillet 2021
  • Estimation coût annuel minimum 1270 €
  • Estimation coût annuel maximum 1790 €
  • Date de référence 01/01/2021

*Dont émissions de gaz à effet de serre

peu d'émissions de CO₂
a
b
c
d
e
f
g

34 kg CO₂/m².an

émissions de CO₂ très importantes

Localisation du bien

Chargement de la carte en cours ...
Le bien se situe dans un rayon de 100m autour du point.

Enregistrez votre alerte

Ne passez pas à côté de la perle rare !

Recevez gratuitement vos nouvelles annonces